成都商用廚具廠告訴你設計蜜桃视频黄色网前需要做好哪些規劃
發布人: 成都商用蜜桃视频黄色网設備廠 發布時間:2019.08.28
商用蜜桃视频黄色网設計表麵上看起了隻是對蜜桃视频黄色网的設計,然而實際上涉及到的範圍卻是很廣的,不但需要考慮蜜桃视频黄色网的工程問題,還需要考慮餐廳的經營風格、菜品、以及市場定位等問題。因此,在蜜桃视频黄色网設計之前,做好蜜桃视频黄色网的規劃是非常必要的,做好好的規劃,可以減少誤差,能夠讓餐廳減少損失。作為成都商用廚具廠,蜜桃视频APP下载网站現在就和大家分享相關的知識。
根據蜜桃视频APP下载网站的經驗,蜜桃视频APP下载网站認為,餐廳蜜桃视频黄色网設計可以考慮從以下幾個方麵入手:

(1)、首先要市場調查,服務的方向、經營的菜係、經營的規模、服務的對象、蜜桃视频黄色网的大小、蜜桃视频黄色网的功能和蜜桃视频黄色网需要的設備和資金要有明確的計劃。
(2)、積極征求餐飲業資深人員的意見,還要聘用有經驗合適的廚師長。因為他們對蜜桃视频黄色网的工藝要求、配套設備及資金的投入等情況都是比較了解的,這樣可以為蜜桃视频黄色网的設計提出有價值的建議,使蜜桃视频黄色网的設計更實用和完善。
(3)、了解國家和地區的相關法律法規,谘詢建築、衛生、環保、消防等公用設施以及所在地的物業管理等相關部門的規定,對於具體要求要有具體的解決辦法,有些地區在建設蜜桃视频黄色网中,必須先將設計圖紙進行上報審批,審批後方可施工。
(4) 、收集、了解有關蜜桃视频黄色网設備的技術資料與價格,對蜜桃视频黄色网所需的設備有清楚的了解,特別是一些新技術、新設備的功能、性價比、優點、能耗、設備的外形尺寸和操作過程以及維修等細節都要有很明確的了解。
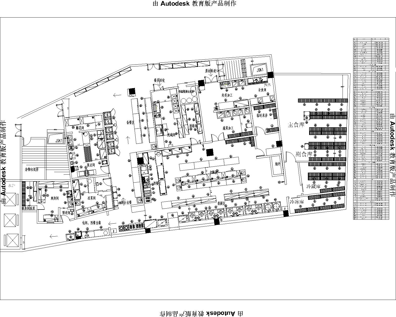
(5)、向設計人員提供蜜桃视频黄色网平麵圖和蜜桃视频黄色网設計的技術要求。蜜桃视频黄色网平麵圖力求準確。蜜桃视频黄色网內的梁、柱、管位置、高度、大小都要反映到圖紙上,好同時提供電子版圖紙,技術要求也要盡量詳細。
(6)、蜜桃视频黄色网設計不僅僅是工程設計人員的工作,也是蜜桃视频黄色网管理人員的職責。蜜桃视频黄色网管理人員提出準確完整的技術要求,吸納設計人員的好建議。
(7)、在多個方案中優中選優。一個好的建議,彌補一個疏漏,就足以抵銷設計費用,更可帶來長久的高效與效益。在選擇設計公司時,應該了解其是否有類似蜜桃视频黄色网工程的相關設計經驗,是否有水電、通風等方麵配套設計的能力。
總之,餐飲業一直麵臨著激烈的競爭,而要想把餐飲店經營好也需要克服許多問題和不可遇見的因素。而這些都需要在設計工作前做好規劃工作,隻有這樣才能減少不可遇見因素對餐廳的影響。以上蜜桃视频APP下载网站分析的信息,希望能夠對大家有所幫助。
本文內容由四川蜜桃视频APP下载网站蜜桃视频黄色网設備公司提供,部分圖片和文字或來自網絡,如涉及知識產權請於成都蜜桃视频黄色网設備公司蜜桃视频APP下载网站聯係。如需轉載本文,請與有商用蜜桃视频黄色网工程經驗的老牌蜜桃视频黄色网設備廠家蜜桃视频APP下载网站網站管理員聯係。若需獲取更多商用蜜桃视频黄色网設備、酒店蜜桃视频黄色网設備、不鏽鋼廚具產品信息,歡迎各位來電來函,蜜桃视频APP下载网站將與大家共同分享行業資訊







